Search

Leave a Message

Thank you for your message. I will be in touch with you shortly.

Explore Properties

Property Description

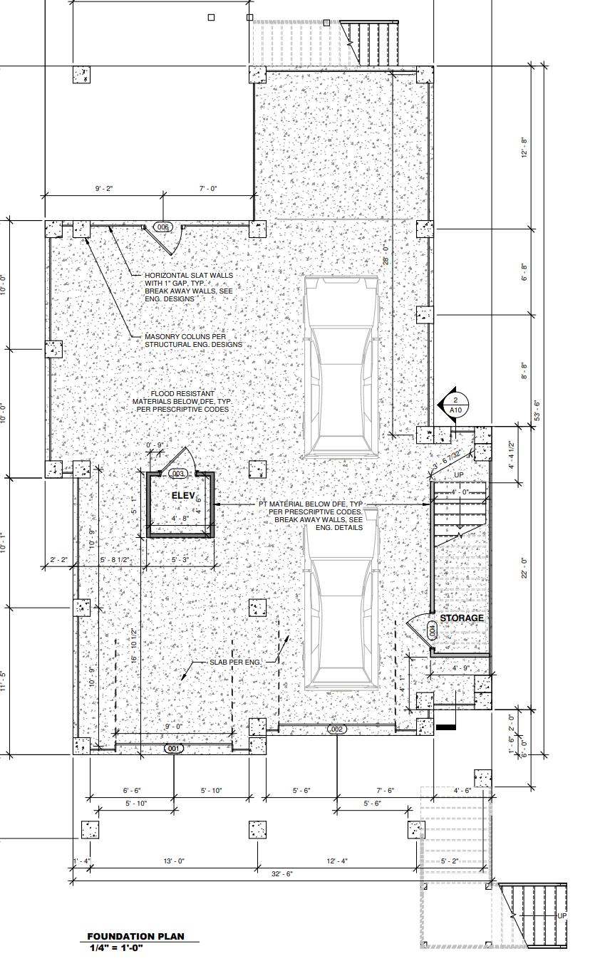
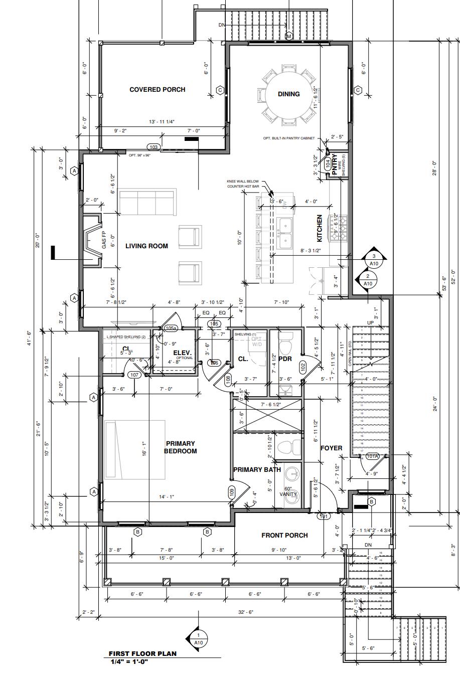
Construction will start soon on this high-end elevated home in the popular Bennetts Bluff neighborhood. The WAILER floorplan will have marsh, pond & wooded views and has a family friendly open living plan that is meant for entertaining. There is still time to pick all selections in the home & the list price includes a $75,000 DESIGN CREDIT to spend in the builder showroom. Work with the design team to truly personalize your new home! The WAILER is 2612 sq ft with 4BD, 3.5BA, an open floor plan, covered porch overlooking the marsh & an elevator shaft in place. The home features our ''Gold Leaf'' structural package which offers 10' first floor ceilings, 9' second floor ceilings, solid core interior doors, 6'' exterior wall, spray foam in the attic & under the home, 16 SEER HVAC and more.The Wailer is an amazing flooring where multiple rooms will look out over the marsh and have gorgeous views. The open floorplan features a focal point kitchen island along with a dining area and open living room. The covered porch can be screened, and steps lead to a professionally landscaped yard with irrigation. The second-floor features 3 large bedrooms, 2 full bathrooms and a laundry room. Underneath the home is plenty of parking, room for storage and outdoor entertaining.

The listing price INCLUDES a $75,000 design credit to be spent in the builder's design showroom. The home will start with our Cypress series of features, and you can upgrade to your liking with the credit. You will receive 5 hours with our interior designer to help with the customization and selections for your home.

Additional features of the home include:

ENERGY SAVINGS FEATURES: tankless water heater, programmable thermostats, single hung low-E windows, 16 SEER Lennox HVAC with variable speed

HOME AUTOMATION SYSTEM: smart hub control panel and App to access remotely, doorbell camera, z-wave light switches, smart door lock

KITCHEN FEATURES: The Cypress series starts with quartz countertops, Frigidaire appliances, stained cabinets. Upgrade options include are the Chef's Kitchen with slide-in range & vent hood or the Gourmet kitchen with cooktop, vent hood and wall oven/microwave combo.

INTERIOR FEATURES: 10' ceilings on first floor, 9' ceilings on second floor, 8' interior doors on first floor, 6'8" interior doors on second floor, craftsman still trim package. 7" baseboards on first floor, 5" baseboards on the second floor, hardwoods in the living areas & carpet throughout the rest of the home, Delta faucets, lighting from Circa and more.

PRIMARY BEDROOM & BATHROOM: carpet with the option to move to hardwoods, ceramic tile flooring in the bathroom, quartz counters, Delta faucets, walk-in tiled shower with option for frameless glass door and more.

GUEST BATHROOMS - tile flooring, quartz counters, Delta faucets

EXTERIOR FEATURES: cement fiber siding, trim, fascia & soffit, marsh-front lot with great views, 30-year architectural shingles, gorgeous exterior lighting options, garage door openers and keyless entry pad, outside hose bibs, professionally designed landscape plan, elevated foundation

Overview

Property Status
Sold
Lot Size
9,583.2 Sq.Ft.
MLS ID
23020766
Property Type
Residential
Year Built
2023

Features & Amenities

Total Area
2,612 Sq.Ft.
Neighborhood
James Island
Architecture Styles
Traditional
Water Frontage
Marshfront, Pond
Stories
2
Garage Spaces
2.0
Water Source
Public
Utilites
Charleston Water Service, Dominion Energy
Roof
Architectural
Parking
2 Car Garage, Attached, Garage Door Opener
Air Conditioning
Central Air
Laundry Room
Laundry Room
Fireplace
Family Room, Gas Log, One
Other Interior Features
Ceiling - Smooth, High Ceilings, Kitchen Island, Walk-In Closet(s), Bonus, Entrance Foyer, Living/Dining Combo, Loft, Office, Pantry, Study
Sewer
Public Sewer
Substructure
Raised
Other Exterior Features
Lawn Irrigation
Elementary School
Stiles Point
Middle School
Camp Road
High School
James Island Charter
Sales Price
$1,386,651

Downloads

1590 Charming Nancy Road

Schedule a Tour

I would love to help you see this beautiful home! As a full-service brokerage, I can help you tour. Please submit an offer, and answer questions about the buying process.

Thank you

for your interest in 1590 Charming Nancy Road, Charleston, SC 29412

1590 Charming Nancy Road
Navigate
 
Luxurious home on James Island

Explore James Island

read more

Featured & Sold Listings

Featured Properties

  • 5315 Frisco Lane Lane For Sale

    $5,995,000

    5315 Frisco Lane, Johns Island, SC 29455

    • 5 Beds
    • 5 Baths
    • 3,190 Sq.Ft.
  • 0 Allandale Plantation Road For Sale

    $5,600,000

    0 Allandale Plantation Road, Wadmalaw Island, SC 29487

    • 4 Beds
    • 5 Baths
    • 3,500 Sq.Ft.
  • 0 Hitching Post Lane Active Under Contract

    $5,200,000

    0 Hitching Post Lane, Summerville, SC 29483

  • 895 White Point Blvd Boulevard Sold

    $4,900,000

    895 White Point Blvd Boulevard, Charleston, SC 29412

    • 4 Beds
    • 6 Baths
    • 3,453 Sq.Ft.
  • 676 Public Landing For Sale

    $4,250,000

    676 Public Lndg Lane, Yemassee, SC 29945

    • 4 Beds
    • 5 Baths
    • 3,459 Sq.Ft.
  • 66 Rutledge Avenue Pending

    $3,995,000

    66 Rutledge Avenue, Charleston, SC 29401

    • 4 Beds
    • 5 Baths
    • 4,943 Sq.Ft.
  • 651 Mccants Drive For Sale

    $3,900,000

    651 Mccants Drive, Mount Pleasant, SC 29464

    • 4 Beds
    • 4 Baths
    • 3,303 Sq.Ft.
  • 49 Society Street Sold

    $3,855,000

    49 Society Street, Charleston, SC 29401

    • 4 Beds
    • 5 Baths
    • 3,612 Sq.Ft.
  • 3 23rd Avenue Sold

    $3,600,000

    3 23rd Avenue, Isle of Palms, SC 29451

    • 5 Beds
    • 7 Baths
    • 3,400 Sq.Ft.
  • 214 Charleston Boulevard Sold

    $3,300,000

    214 Charleston Boulevard, Isle of Palms, SC 29451

    • 6 Beds
    • 6 Baths
    • 4,423 Sq.Ft.
  • 208 Mccormick Street For Sale

    $3,250,000

    208 Mccormick Street, Mount Pleasant, SC 29464

    • 4 Beds
    • 4 Baths
    • 2,851 Sq.Ft.
  • 313 E Arctic Avenue Sold

    $3,095,000

    313 E Arctic Avenue, Folly Beach, SC 29439

    • 3 Beds
    • 3 Baths
    • 2,290 Sq.Ft.
  • 1408 Jackson Street Sold

    $2,950,000

    1408 Jackson Street, Mount Pleasant, SC 29464

    • 4 Beds
    • 4 Baths
    • 4,012 Sq.Ft.
  • 1599&1601 E Ashley Avenue Active Under Contract

    $2,950,000

    1599&1601 E Ashley Avenue, Folly Beach, SC 29439

  • 528 Wampler Drive Sold

    $2,914,500

    528 Wampler Drive, Charleston, SC 29412

    • 4 Beds
    • 3 Baths
    • 2,793 Sq.Ft.
  • 503 E Arctic Avenue Sold

    $2,885,000

    503 E Arctic Avenue, Folly Beach, SC 29439

    • 4 Beds
    • 4 Baths
    • 3,445 Sq.Ft.
  • 14 Limehouse Street For Sale

    $2,875,000

    14 Limehouse Street, Charleston, SC 29401

    • 4 Beds
    • 4 Baths
    • 2,615 Sq.Ft.
  • 1063 Mainsail Court Sold

    $2,831,500

    1063 Mainsail Court, Awendaw, SC 29429

    • 5 Beds
    • 5 Baths
    • 3,540 Sq.Ft.
  • 422 Palm Street Sold

    $2,825,000

    422 Palm Street, Mount Pleasant, SC 29464

    • 5 Beds
    • 5 Baths
    • 3,600 Sq.Ft.
  • 392 Tombee Court Sold

    $2,770,000

    392 Tombee Court, Mount Pleasant, SC 29464

    • 5 Beds
    • 5 Baths
    • 4,700 Sq.Ft.
  • 15 Longitude Lane Sold

    $2,750,000

    15 Longitude Lane, Charleston, SC 29401

    • 4 Beds
    • 3 Baths
    • 2,446 Sq.Ft.
  • 17 Judith Street For Sale

    $2,750,000

    17 Judith Street, Charleston, SC 29403

    • 5 Beds
    • 5,494 Sq.Ft.
  • 3320 Hopkinson Plantation Road Sold

    $2,750,000

    3320 Hopkinson Plantation Road, Johns Island, SC 29455

    • 5 Beds
    • 6 Baths
    • 6,126 Sq.Ft.
  • 4215 Ten Shillings Way Sold

    $2,725,000

    4215 Ten Shillings Way, Ravenel, SC 29470

    • 4 Beds
    • 5 Baths
    • 4,544 Sq.Ft.
  • 1214 Tabby Drive For Sale

    $2,700,000

    1214 Tabby Drive, Folly Beach, SC 29439

    • 5 Beds
    • 5 Baths
    • 3,170 Sq.Ft.
  • 2621 Anchor Watch Drive For Sale

    $2,695,000

    2621 Anchor Watch Drive, Wadmalaw Island, SC 29487

    • 6 Beds
    • 5 Baths
    • 3,378 Sq.Ft.
  • 513 E Arctic Avenue Sold

    $2,675,000

    513 E Arctic Avenue, Folly Beach, SC 29439

    • 4 Beds
    • 3 Baths
    • 2,318 Sq.Ft.
  • 112 E Huron Avenue # C For Sale

    $2,575,000

    112 E Huron Avenue # C, Folly Beach, SC 29439

    • 7 Beds
    • 7 Baths
    • 3,784 Sq.Ft.
  • 8 & 8 1/2 Elliott Street Unit: 8 & 8 1/2 Sold

    $2,550,000

    8 & 8 1/2 Elliott Street Unit: 8 & 8 1/2, Charleston, SC 29401

    • 3 Beds
    • 4 Baths
    • 3,187 Sq.Ft.
  • 2480 Royal Oak Drive Sold

    $2,500,000

    2480 Royal Oak Drive, Johns Island, SC 29455

    • 4 Beds
    • 4 Baths
    • 3,278 Sq.Ft.
  • 731 Virginia Rail Road Active Under Contract

    $2,475,000

    731 Virginia Rail Road, Kiawah Island, SC 29455

    • 3 Beds
    • 4 Baths
    • 2,733 Sq.Ft.
  • 1306 Palmetto Boulevard Sold

    $2,450,000

    1306 Palmetto Boulevard, Edisto Beach, SC 29438

    • 5 Beds
    • 4 Baths
    • 1,592 Sq.Ft.
  • 1579 E Ashley Avenue Sold

    $2,450,000

    1579 E Ashley Avenue, Folly Beach, SC 29439

    • 3 Beds
    • 4 Baths
    • 2,345 Sq.Ft.
  • 2292 Beckenham Drive Sold

    $2,435,000

    2292 Beckenham Drive, Mount Pleasant, SC 29466

    • 6 Beds
    • 9 Baths
    • 7,479 Sq.Ft.
  • 1857 Headquarters Plantation Drive Sold

    $2,351,000

    1857 Headquarters Plantation Drive, Johns Island, SC 29455

    • 5 Beds
    • 6 Baths
    • 4,551 Sq.Ft.
  • 1699 E Ashley Avenue # B For Sale

    $2,295,000

    1699 E Ashley Avenue # B, Folly Beach, SC 29439

    • 5 Beds
    • 4 Baths
    • 3,027 Sq.Ft.
  • 766 Clearview Drive Sold

    $2,250,000

    766 Clearview Drive, Charleston, SC 29412

    • 3 Beds
    • 2 Baths
    • 2,812 Sq.Ft.
  • 179 Wentworth Street Sold

    $2,050,000

    179 Wentworth Street, Charleston, SC 29401

    • 3 Beds
    • 4 Baths
    • 2,210 Sq.Ft.
  • 74 Sandbar Lane Sold

    $2,050,000

    74 Sandbar Lane, Folly Beach, SC 29439

    • 5 Beds
    • 5 Baths
    • 2,833 Sq.Ft.
  • 2407 Cameron Boulevard Sold

    $2,000,000

    2407 Cameron Boulevard, Isle of Palms, SC 29451

    • 5 Beds
    • 3 Baths
    • 2,469 Sq.Ft.
  • 2407 Cameron Boulevard # B Unit: A & B Sold

    $2,000,000

    2407 Cameron Boulevard # B Unit: A & B, Isle of Palms, SC 29451

    • 5 Beds
    • 2,469 Sq.Ft.
  • 827 Robert E Lee Boulevard Sold

    $2,000,000

    827 Robert E Lee Boulevard, Charleston, SC 29412

    • 5 Beds
    • 5 Baths
    • 4,601 Sq.Ft.
  • 313 E Arctic Avenue Sold

    $1,950,000

    313 E Arctic Avenue, Folly Beach, SC 29439

    • 3 Beds
    • 2 Baths
    • 1,908 Sq.Ft.
  • 1145 Hills Plantation Drive Sold

    $1,940,000

    1145 Hills Plantation Drive, Charleston, SC 29412

    • 5 Beds
    • 4 Baths
    • 3,224 Sq.Ft.
  • 1544 John Fenwick Lane For Sale

    $1,900,000

    1544 John Fenwick Lane, Johns Island, SC 29455

    • 4 Beds
    • 5 Baths
    • 3,203 Sq.Ft.
  • 244 Ashley Avenue Sold

    $1,900,000

    244 Ashley Avenue, Charleston, SC 29403

    • 3 Beds
    • 3 Baths
    • 2,084 Sq.Ft.
  • 222 S Plaza Court For Sale

    $1,899,000

    222 S Plaza Court, Mount Pleasant, SC 29464

    • 3 Beds
    • 3 Baths
    • 2,066 Sq.Ft.
  • 0 Folly Road For Sale

    $1,895,000

    0 Folly Road, Charleston, SC 29412

  • 9 Gadsden Street For Sale

    $1,895,000

    9 Gadsden Street, Charleston, SC 29401

    • 5 Beds
    • 3 Baths
    • 2,456 Sq.Ft.
  • 9 Gadsden Street For Sale

    $1,895,000

    9 Gadsden Street, Charleston, SC 29401

    • 5 Beds
    • 2,456 Sq.Ft.
View All

Follow Us On Instagram