Search

Leave a Message

Thank you for your message. I will be in touch with you shortly.

Explore Properties

Property Description

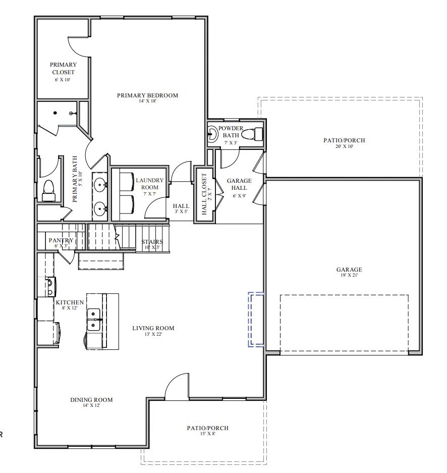
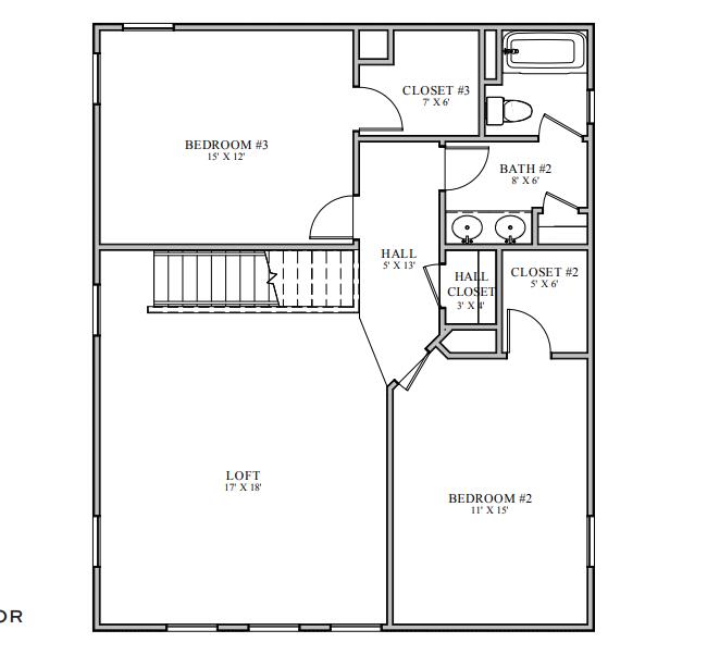
Welcome to Crocket Court - a 5 home pocket neighborhood located right near the restaurants & shops of the Terrace Theatre area. Walk, bike or golf cart to everything you need! Lot #2 is the CEDAR floorplan - 3 BD, 2.5 BA, 2366s sq with a loft area, covered porch and attached 2 car garage. The exterior of the home features cement fiber siding with aluminum trim and vinyl soffit. The interior features quartz counters in the kitchen along with high end cabinets with 42'' uppers, soft close drawers and doors, stainless steel appliance package and designer cabinet hardware options. The bathrooms and laundry have ceramic tile flooring and the master shower features tiled walls as well with a fiberglass shower pan. Luxury vinyl plank floorings in the downstairs living areas & carpet upstairs.Each home on Crockett Court comes with a $25,000 design center credit and buyers get 5 hours of consultation with the amazing design team....full information on included features is below:

INTERIOR FEATURES: 5" hardwoods on luxury vinyl plank flooring in the main living areas ~ high quality carpet in the bedrooms, stairs and second floor ~ ceramic tile in bathrooms and laundry ~ 9' smooth ceilings ~ 5" baseboards ~ window and door casing included ~ choice of door hardware and door style ~ home automation system ~ Sherman Williams paint with1 wall color, 1 trim color and 1 ceiling color.

CONSTRUCTION SERVICES: 5 hours with the Design Team to choose your home selections ~ pre-construction, pre-drywall and homeowner orientation meetings ~ 1 year builder warranty ~ termite bond

ENERGY EFFICIENT FEATURES: tankless water heater ~ radiant roof barrier ~ 15 SEER Lennox HVAC unit ~ programmable thermostats ~ Low VOC paint ~ Low-E single hung windows.

KITCHEN FEATURES: quartz or granite countertops ~ 42" upper cabinets with molding and choice of stains ~ curated cabinet hardware ~ stainless steel appliances ~ garbage disposal ~ 50/50 undermount sink ~ soft closer drawers and cabinets

BATHROOM FEATURES: 36"stained cabinets with quartz or granite countertops ~ dual vanity in the primary bathroom ~ walk-in shower with tile walls in primary bathroom ~ fiberglass tub/shower combo in guest bath ~ elongated toilets ~ ceramic tile floors in all bathrooms ~ Delta Trinsic single-hold faucets in Chrome

EXTERIOR FEATURES: cement fiber siding ~ aluminum trim and vinyl soffit ~ metal roof accent per plan ~ 30-year architectural shingles ~ screens in all windows ~ two hose bibs ~ concrete porch per plan

GARAGE: all homes feature an attached two car garage with door openers and keyless entry pad

These homes will not last long so reach out today!!

Overview

Property Status
Sold
Lot Size
8,712 Sq.Ft.
MLS ID
23019985
Property Type
Residential
Year Built
2023

Features & Amenities

Total Area
2,366 Sq.Ft.
Neighborhood
James Island
Architecture Styles
Traditional
Stories
2
Garage Spaces
2.0
Water Source
Public
Utilites
Charleston Water Service, Dominion Energy
Roof
Architectural
Lot Features
Interior Lot
Parking
2 Car Garage, Attached, Garage Door Opener
Laundry Room
Laundry Room
Fireplace
Gas Log, Living Room, One
Other Interior Features
Ceiling - Smooth, High Ceilings, Walk-In Closet(s), Family, Loft
Sewer
Public Sewer
Substructure
Slab
Elementary School
Murray Lasaine
Middle School
Camp Road
High School
James Island Charter
Sales Price
$788,353

Downloads

4008 Crockett Court

Schedule a Tour

I would love to help you see this beautiful home! As a full-service brokerage, I can help you tour. Please submit an offer, and answer questions about the buying process.

Thank you

for your interest in 4008 Crockett Court, Charleston, SC 29412

4008 Crockett Court
Navigate
 
Luxurious home on James Island

Explore James Island

read more

Featured & Sold Listings

Featured Properties

  • 5315 Frisco Lane Lane For Sale

    $5,995,000

    5315 Frisco Lane, Johns Island, SC 29455

    • 5 Beds
    • 5 Baths
    • 3,190 Sq.Ft.
  • 0 Allandale Plantation Road Active Under Contract

    $5,600,000

    0 Allandale Plantation Road, Wadmalaw Island, SC 29487

    • 4 Beds
    • 5 Baths
    • 3,500 Sq.Ft.
  • 0 Hitching Post Lane Active Under Contract

    $5,200,000

    0 Hitching Post Lane, Summerville, SC 29483

  • 651 Mccants Drive For Sale

    $3,900,000

    651 Mccants Drive, Mount Pleasant, SC 29464

    • 4 Beds
    • 4 Baths
    • 3,303 Sq.Ft.
  • 603 E Arctic Avenue For Sale

    $3,695,000

    603 E Arctic Avenue, Folly Beach, SC 29439

    • 6 Beds
    • 6 Baths
    • 3,456 Sq.Ft.
  • 601 Palmetto Boulevard For Sale

    $3,599,000

    601 Palmetto Boulevard, Edisto Island, SC 29438

    • 4 Beds
    • 4 Baths
    • 3,764 Sq.Ft.
  • 313 E Arctic Avenue Sold

    $3,095,000

    313 E Arctic Avenue, Folly Beach, SC 29439

    • 3 Beds
    • 3 Baths
    • 2,290 Sq.Ft.
  • 1408 Jackson Street Sold

    $2,950,000

    1408 Jackson Street, Mount Pleasant, SC 29464

    • 4 Beds
    • 4 Baths
    • 4,012 Sq.Ft.
  • 1599&1601 E Ashley Avenue Active Under Contract

    $2,950,000

    1599&1601 E Ashley Avenue, Folly Beach, SC 29439

  • 528 Wampler Drive Sold

    $2,914,500

    528 Wampler Drive, Charleston, SC 29412

    • 4 Beds
    • 3 Baths
    • 2,793 Sq.Ft.
  • 503 E Arctic Avenue Sold

    $2,885,000

    503 E Arctic Avenue, Folly Beach, SC 29439

    • 4 Beds
    • 4 Baths
    • 3,445 Sq.Ft.
  • 1063 Mainsail Court Sold

    $2,831,500

    1063 Mainsail Court, Awendaw, SC 29429

    • 5 Beds
    • 5 Baths
    • 3,540 Sq.Ft.
  • 422 Palm Street Sold

    $2,825,000

    422 Palm Street, Mount Pleasant, SC 29464

    • 5 Beds
    • 5 Baths
    • 3,600 Sq.Ft.
  • 14 Limehouse Street For Sale

    $2,799,000

    14 Limehouse Street, Charleston, SC 29401

    • 4 Beds
    • 4 Baths
    • 2,615 Sq.Ft.
  • 392 Tombee Court Sold

    $2,770,000

    392 Tombee Court, Mount Pleasant, SC 29464

    • 5 Beds
    • 5 Baths
    • 4,700 Sq.Ft.
  • 3320 Hopkinson Plantation Road Sold

    $2,750,000

    3320 Hopkinson Plantation Road, Johns Island, SC 29455

    • 5 Beds
    • 6 Baths
    • 6,126 Sq.Ft.
  • 4215 Ten Shillings Way Sold

    $2,725,000

    4215 Ten Shillings Way, Ravenel, SC 29470

    • 4 Beds
    • 5 Baths
    • 4,544 Sq.Ft.
  • 1214 Tabby Drive For Sale

    $2,700,000

    1214 Tabby Drive, Folly Beach, SC 29439

    • 5 Beds
    • 5 Baths
    • 3,170 Sq.Ft.
  • 513 E Arctic Avenue Sold

    $2,675,000

    513 E Arctic Avenue, Folly Beach, SC 29439

    • 4 Beds
    • 3 Baths
    • 2,318 Sq.Ft.
  • 112 E Huron Avenue # C For Sale

    $2,555,000

    112 E Huron Avenue # C, Folly Beach, SC 29439

    • 7 Beds
    • 7 Baths
    • 3,784 Sq.Ft.
  • 2480 Royal Oak Drive Sold

    $2,500,000

    2480 Royal Oak Drive, Johns Island, SC 29455

    • 4 Beds
    • 4 Baths
    • 3,278 Sq.Ft.
  • 1306 Palmetto Boulevard Sold

    $2,450,000

    1306 Palmetto Boulevard, Edisto Beach, SC 29438

    • 5 Beds
    • 4 Baths
    • 1,592 Sq.Ft.
  • 1857 Headquarters Plantation Drive Sold

    $2,351,000

    1857 Headquarters Plantation Drive, Johns Island, SC 29455

    • 5 Beds
    • 6 Baths
    • 4,551 Sq.Ft.
  • 1699 E Ashley Avenue # B For Sale

    $2,275,000

    1699 E Ashley Avenue # B, Folly Beach, SC 29439

    • 5 Beds
    • 4 Baths
    • 3,027 Sq.Ft.
  • 731 Virginia Rail Road Sold

    $2,250,000

    731 Virginia Rail Road, Kiawah Island, SC 29455

    • 3 Beds
    • 4 Baths
    • 2,733 Sq.Ft.
  • 766 Clearview Drive Sold

    $2,250,000

    766 Clearview Drive, Charleston, SC 29412

    • 3 Beds
    • 2 Baths
    • 2,812 Sq.Ft.
  • 1692 Wharf Ferry Road For Sale

    $2,100,000

    1692 Wharf Ferry Road, Edisto Island, SC 29438

    • 4 Beds
    • 4 Baths
    • 3,075 Sq.Ft.
  • 179 Wentworth Street Sold

    $2,050,000

    179 Wentworth Street, Charleston, SC 29401

    • 3 Beds
    • 4 Baths
    • 2,210 Sq.Ft.
  • 74 Sandbar Lane Sold

    $2,050,000

    74 Sandbar Lane, Folly Beach, SC 29439

    • 5 Beds
    • 5 Baths
    • 2,833 Sq.Ft.
  • 827 Robert E Lee Boulevard Sold

    $2,000,000

    827 Robert E Lee Boulevard, Charleston, SC 29412

    • 5 Beds
    • 5 Baths
    • 4,601 Sq.Ft.
  • 313 E Arctic Avenue Sold

    $1,950,000

    313 E Arctic Avenue, Folly Beach, SC 29439

    • 3 Beds
    • 2 Baths
    • 1,908 Sq.Ft.
  • 1145 Hills Plantation Drive Sold

    $1,940,000

    1145 Hills Plantation Drive, Charleston, SC 29412

    • 5 Beds
    • 4 Baths
    • 3,224 Sq.Ft.
  • 1544 John Fenwick Lane Active Under Contract

    $1,900,000

    1544 John Fenwick Lane, Johns Island, SC 29455

    • 4 Beds
    • 5 Baths
    • 3,203 Sq.Ft.
  • 244 Ashley Avenue Sold

    $1,900,000

    244 Ashley Avenue, Charleston, SC 29403

    • 3 Beds
    • 3 Baths
    • 2,084 Sq.Ft.
  • 0 Folly Road Active Under Contract

    $1,895,000

    0 Folly Road, Charleston, SC 29412

  • 269 Belladonna Court Active Under Contract

    $1,875,000

    269 Belladonna Court, Georgetown, SC 29440

    • 5 Beds
    • 4 Baths
    • 3,016 Sq.Ft.
  • 453 Sea Rocket Court Sold

    $1,850,000

    453 Sea Rocket Court, Kiawah Island, SC 29455

    • 3 Beds
    • 2 Baths
    • 1,355 Sq.Ft.
  • 2363 Palmer Creek Bend Sold

    $1,840,000

    2363 Palmer Creek Bend, Charleston, SC 29412

    • 3 Beds
    • 4 Baths
    • 2,689 Sq.Ft.
  • 1735 E Ashley Avenue For Sale

    $1,800,000

    1735 E Ashley Avenue, Folly Beach, SC 29439

  • 1871 Headquarters Plantation Drive Sold

    $1,800,000

    1871 Headquarters Plantation Drive, Johns Island, SC 29455

    • 4 Beds
    • 4 Baths
    • 3,119 Sq.Ft.
  • 1988 Long Creek Road Sold

    $1,800,000

    1988 Long Creek Road, Wadmalaw Island, SC 29487

    • 3 Beds
    • 3 Baths
    • 2,560 Sq.Ft.
  • 2196 Coker Avenue Sold

    $1,795,000

    2196 Coker Avenue, Charleston, SC 29412

    • 3 Beds
    • 3 Baths
    • 3,012 Sq.Ft.
  • 222 S Plaza Court For Sale

    $1,795,000

    222 S Plaza Court, Mount Pleasant, SC 29464

    • 3 Beds
    • 3 Baths
    • 2,066 Sq.Ft.
  • 68 W 9th Street # B Sold

    $1,775,000

    68 W 9th Street # B, Folly Beach, SC 29439

    • 3 Beds
    • 4 Baths
    • 2,234 Sq.Ft.
  • 768 Gate Post Drive For Sale

    $1,750,000

    768 Gate Post Drive, Mount Pleasant, SC 29464

    • 3 Beds
    • 3 Baths
    • 1,875 Sq.Ft.
  • 8272 Palmetto Road Sold

    $1,750,000

    8272 Palmetto Road, Edisto Island, SC 29438

    • 3 Beds
    • 3 Baths
    • 1,534 Sq.Ft.
  • 420 E Erie Avenue For Sale

    $1,725,000

    420 E Erie Avenue, Folly Beach, SC 29439

    • 4 Beds
    • 3 Baths
    • 3,159 Sq.Ft.
  • 756 Creekside Drive Sold

    $1,650,000

    756 Creekside Drive, Mount Pleasant, SC 29464

    • 4 Beds
    • 3 Baths
    • 3,304 Sq.Ft.
  • 8958 Palmetto Road Sold

    $1,619,000

    8958 Palmetto Road, Edisto Island, SC 29438

    • 6 Beds
    • 7 Baths
    • 3,800 Sq.Ft.
  • 826 Curved Creek Court For Sale

    $1,600,000

    826 Curved Creek Court, Charleston, SC 29412

    • 3 Beds
    • 4 Baths
    • 2,112 Sq.Ft.
View All

Follow Us On Instagram