Search

Leave a Message

Thank you for your message. I will be in touch with you shortly.

Explore Properties

Property Description

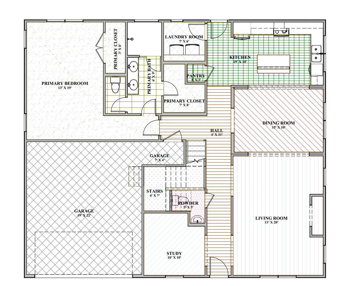
Construction is UNDERWAY & some great features are now included: 36'' Frigidaire Pro gas range and hood, Chef's kitchen layout with stacked cabinets, white oak stair treads, 70'' Maverick ceiling fan in the living area, handheld faucet in the primary bathroom and more. Welcome to Crockett Court... a quaint street of five homes located right near the restaurants & shops of Riverland Terrace and just 10 minutes from Downtown Charleston & Folly Beach. The DOGWOOD floorplan is the largest home on the street at 2723 sq feet with 4 bedrooms, 2.5 bathrooms, a first-floor home office plus a second-floor loft area and covered back porch. The base price of the home includes a $25,000 design credit to spend in the builder showroom to upgrade your new home!Each home on Crockett Court comes with a $25,000 design center credit and buyers get 5 hours of consultation with the amazing design team....full information on included features is below:

INTERIOR FEATURES: 5" hardwoods on luxury vinyl plank flooring in the main living areas ~ high quality carpet in the bedrooms, stairs and second floor ~ ceramic tile in bathrooms and laundry ~ 9' smooth ceilings ~ 5" baseboards ~ window and door casing included ~ choice of door hardware and door style ~ home automation system ~ Sherman Williams paint with1 wall color, 1 trim color and 1 ceiling color.

CONSTRUCTION SERVICES: 5 hours with the Design Team to choose your home selections ~ pre-construction, pre-drywall and homeowner orientation meetings ~ 1 year builder warranty ~ termite bond

ENERGY EFFICIENT FEATURES: tankless water heater ~ radiant roof barrier ~ 15 SEER Lennox HVAC unit ~ programmable thermostats ~ Low VOC paint ~ Low-E single hung windows.

KITCHEN FEATURES: quartz or granite countertops ~ 42" upper cabinets with molding and choice of stains ~ curated cabinet hardware ~ stainless steel appliances ~ garbage disposal ~ 50/50 undermount sink ~ soft closer drawers and cabinets

BATHROOM FEATURES: 36"stained cabinets with quartz or granite countertops ~ dual vanity in the primary bathroom ~ walk-in shower with tile walls in primary bathroom ~ fiberglass tub/shower combo in guest bath ~ elongated toilets ~ ceramic tile floors in all bathrooms ~ Delta Trinsic single-hold faucets in Chrome

EXTERIOR FEATURES: cement fiber siding ~ aluminum trim and vinyl soffit ~ metal roof accent per plan ~ 30-year architectural shingles ~ screens in all windows ~ two hose bibs ~ concrete porch per plan

GARAGE: all homes feature an attached two car garage with door openers and keyless entry pad

These homes will not last long so reach out today!!

Overview

Property Status
Sold
Lot Size
9,583.2 Sq.Ft.
MLS ID
23013054
Property Type
Residential
Year Built
2023

Features & Amenities

Total Area
2,723 Sq.Ft.
Neighborhood
James Island
Architecture Styles
Traditional
Stories
2
Garage Spaces
2.0
Water Source
Public
Utilites
Charleston Water Service, Dominion Energy
Roof
Architectural
Lot Features
Interior Lot, Level
Parking
2 Car Garage, Attached, Garage Door Opener
Air Conditioning
Central Air
Laundry Room
Laundry Room
Fireplace
Family Room, One
Other Interior Features
High Ceilings, Elevator, Kitchen Island, Walk-In Closet(s), Frog Attached, Loft, Office, Separate Dining, Study
Sewer
Public Sewer
Substructure
Slab
Elementary School
Murray Lasaine
Middle School
Camp Road
High School
James Island Charter
Sales Price
$921,319

Downloads

4012 Crockett Court

Schedule a Tour

I would love to help you see this beautiful home! As a full-service brokerage, I can help you tour. Please submit an offer, and answer questions about the buying process.

Thank you

for your interest in 4012 Crockett Court, Charleston, SC 29412

4012 Crockett Court
Navigate
 
Luxurious home on James Island

Explore James Island

read more

Featured & Sold Listings

Featured Properties

  • 5315 Frisco Lane Lane For Sale

    $5,995,000

    5315 Frisco Lane, Johns Island, SC 29455

    • 5 Beds
    • 5 Baths
    • 3,190 Sq.Ft.
  • 0 Allandale Plantation Road For Sale

    $5,600,000

    0 Allandale Plantation Road, Wadmalaw Island, SC 29487

    • 4 Beds
    • 5 Baths
    • 3,500 Sq.Ft.
  • 0 Hitching Post Lane Active Under Contract

    $5,200,000

    0 Hitching Post Lane, Summerville, SC 29483

  • 895 White Point Blvd Boulevard Sold

    $4,900,000

    895 White Point Blvd Boulevard, Charleston, SC 29412

    • 4 Beds
    • 6 Baths
    • 3,453 Sq.Ft.
  • 676 Public Landing For Sale

    $4,250,000

    676 Public Lndg Lane, Yemassee, SC 29945

    • 4 Beds
    • 5 Baths
    • 3,459 Sq.Ft.
  • 66 Rutledge Avenue Pending

    $3,995,000

    66 Rutledge Avenue, Charleston, SC 29401

    • 4 Beds
    • 5 Baths
    • 4,943 Sq.Ft.
  • 651 Mccants Drive For Sale

    $3,900,000

    651 Mccants Drive, Mount Pleasant, SC 29464

    • 4 Beds
    • 4 Baths
    • 3,303 Sq.Ft.
  • 49 Society Street Sold

    $3,855,000

    49 Society Street, Charleston, SC 29401

    • 4 Beds
    • 5 Baths
    • 3,612 Sq.Ft.
  • 3 23rd Avenue Sold

    $3,600,000

    3 23rd Avenue, Isle of Palms, SC 29451

    • 5 Beds
    • 7 Baths
    • 3,400 Sq.Ft.
  • 214 Charleston Boulevard Sold

    $3,300,000

    214 Charleston Boulevard, Isle of Palms, SC 29451

    • 6 Beds
    • 6 Baths
    • 4,423 Sq.Ft.
  • 208 Mccormick Street For Sale

    $3,250,000

    208 Mccormick Street, Mount Pleasant, SC 29464

    • 4 Beds
    • 4 Baths
    • 2,851 Sq.Ft.
  • 313 E Arctic Avenue Sold

    $3,095,000

    313 E Arctic Avenue, Folly Beach, SC 29439

    • 3 Beds
    • 3 Baths
    • 2,290 Sq.Ft.
  • 1408 Jackson Street Sold

    $2,950,000

    1408 Jackson Street, Mount Pleasant, SC 29464

    • 4 Beds
    • 4 Baths
    • 4,012 Sq.Ft.
  • 1599&1601 E Ashley Avenue Active Under Contract

    $2,950,000

    1599&1601 E Ashley Avenue, Folly Beach, SC 29439

  • 528 Wampler Drive Sold

    $2,914,500

    528 Wampler Drive, Charleston, SC 29412

    • 4 Beds
    • 3 Baths
    • 2,793 Sq.Ft.
  • 503 E Arctic Avenue Sold

    $2,885,000

    503 E Arctic Avenue, Folly Beach, SC 29439

    • 4 Beds
    • 4 Baths
    • 3,445 Sq.Ft.
  • 14 Limehouse Street For Sale

    $2,875,000

    14 Limehouse Street, Charleston, SC 29401

    • 4 Beds
    • 4 Baths
    • 2,615 Sq.Ft.
  • 1063 Mainsail Court Sold

    $2,831,500

    1063 Mainsail Court, Awendaw, SC 29429

    • 5 Beds
    • 5 Baths
    • 3,540 Sq.Ft.
  • 422 Palm Street Sold

    $2,825,000

    422 Palm Street, Mount Pleasant, SC 29464

    • 5 Beds
    • 5 Baths
    • 3,600 Sq.Ft.
  • 392 Tombee Court Sold

    $2,770,000

    392 Tombee Court, Mount Pleasant, SC 29464

    • 5 Beds
    • 5 Baths
    • 4,700 Sq.Ft.
  • 15 Longitude Lane Sold

    $2,750,000

    15 Longitude Lane, Charleston, SC 29401

    • 4 Beds
    • 3 Baths
    • 2,446 Sq.Ft.
  • 17 Judith Street For Sale

    $2,750,000

    17 Judith Street, Charleston, SC 29403

    • 5 Beds
    • 5,494 Sq.Ft.
  • 3320 Hopkinson Plantation Road Sold

    $2,750,000

    3320 Hopkinson Plantation Road, Johns Island, SC 29455

    • 5 Beds
    • 6 Baths
    • 6,126 Sq.Ft.
  • 4215 Ten Shillings Way Sold

    $2,725,000

    4215 Ten Shillings Way, Ravenel, SC 29470

    • 4 Beds
    • 5 Baths
    • 4,544 Sq.Ft.
  • 1214 Tabby Drive For Sale

    $2,700,000

    1214 Tabby Drive, Folly Beach, SC 29439

    • 5 Beds
    • 5 Baths
    • 3,170 Sq.Ft.
  • 2621 Anchor Watch Drive For Sale

    $2,695,000

    2621 Anchor Watch Drive, Wadmalaw Island, SC 29487

    • 6 Beds
    • 5 Baths
    • 3,378 Sq.Ft.
  • 513 E Arctic Avenue Sold

    $2,675,000

    513 E Arctic Avenue, Folly Beach, SC 29439

    • 4 Beds
    • 3 Baths
    • 2,318 Sq.Ft.
  • 112 E Huron Avenue # C For Sale

    $2,575,000

    112 E Huron Avenue # C, Folly Beach, SC 29439

    • 7 Beds
    • 7 Baths
    • 3,784 Sq.Ft.
  • 8 & 8 1/2 Elliott Street Unit: 8 & 8 1/2 Sold

    $2,550,000

    8 & 8 1/2 Elliott Street Unit: 8 & 8 1/2, Charleston, SC 29401

    • 3 Beds
    • 4 Baths
    • 3,187 Sq.Ft.
  • 2480 Royal Oak Drive Sold

    $2,500,000

    2480 Royal Oak Drive, Johns Island, SC 29455

    • 4 Beds
    • 4 Baths
    • 3,278 Sq.Ft.
  • 731 Virginia Rail Road Active Under Contract

    $2,475,000

    731 Virginia Rail Road, Kiawah Island, SC 29455

    • 3 Beds
    • 4 Baths
    • 2,733 Sq.Ft.
  • 1306 Palmetto Boulevard Sold

    $2,450,000

    1306 Palmetto Boulevard, Edisto Beach, SC 29438

    • 5 Beds
    • 4 Baths
    • 1,592 Sq.Ft.
  • 1579 E Ashley Avenue Sold

    $2,450,000

    1579 E Ashley Avenue, Folly Beach, SC 29439

    • 3 Beds
    • 4 Baths
    • 2,345 Sq.Ft.
  • 2292 Beckenham Drive Sold

    $2,435,000

    2292 Beckenham Drive, Mount Pleasant, SC 29466

    • 6 Beds
    • 9 Baths
    • 7,479 Sq.Ft.
  • 1857 Headquarters Plantation Drive Sold

    $2,351,000

    1857 Headquarters Plantation Drive, Johns Island, SC 29455

    • 5 Beds
    • 6 Baths
    • 4,551 Sq.Ft.
  • 1699 E Ashley Avenue # B For Sale

    $2,295,000

    1699 E Ashley Avenue # B, Folly Beach, SC 29439

    • 5 Beds
    • 4 Baths
    • 3,027 Sq.Ft.
  • 766 Clearview Drive Sold

    $2,250,000

    766 Clearview Drive, Charleston, SC 29412

    • 3 Beds
    • 2 Baths
    • 2,812 Sq.Ft.
  • 179 Wentworth Street Sold

    $2,050,000

    179 Wentworth Street, Charleston, SC 29401

    • 3 Beds
    • 4 Baths
    • 2,210 Sq.Ft.
  • 74 Sandbar Lane Sold

    $2,050,000

    74 Sandbar Lane, Folly Beach, SC 29439

    • 5 Beds
    • 5 Baths
    • 2,833 Sq.Ft.
  • 2407 Cameron Boulevard Sold

    $2,000,000

    2407 Cameron Boulevard, Isle of Palms, SC 29451

    • 5 Beds
    • 3 Baths
    • 2,469 Sq.Ft.
  • 2407 Cameron Boulevard # B Unit: A & B Sold

    $2,000,000

    2407 Cameron Boulevard # B Unit: A & B, Isle of Palms, SC 29451

    • 5 Beds
    • 2,469 Sq.Ft.
  • 827 Robert E Lee Boulevard Sold

    $2,000,000

    827 Robert E Lee Boulevard, Charleston, SC 29412

    • 5 Beds
    • 5 Baths
    • 4,601 Sq.Ft.
  • 313 E Arctic Avenue Sold

    $1,950,000

    313 E Arctic Avenue, Folly Beach, SC 29439

    • 3 Beds
    • 2 Baths
    • 1,908 Sq.Ft.
  • 1145 Hills Plantation Drive Sold

    $1,940,000

    1145 Hills Plantation Drive, Charleston, SC 29412

    • 5 Beds
    • 4 Baths
    • 3,224 Sq.Ft.
  • 1544 John Fenwick Lane For Sale

    $1,900,000

    1544 John Fenwick Lane, Johns Island, SC 29455

    • 4 Beds
    • 5 Baths
    • 3,203 Sq.Ft.
  • 244 Ashley Avenue Sold

    $1,900,000

    244 Ashley Avenue, Charleston, SC 29403

    • 3 Beds
    • 3 Baths
    • 2,084 Sq.Ft.
  • 222 S Plaza Court For Sale

    $1,899,000

    222 S Plaza Court, Mount Pleasant, SC 29464

    • 3 Beds
    • 3 Baths
    • 2,066 Sq.Ft.
  • 0 Folly Road For Sale

    $1,895,000

    0 Folly Road, Charleston, SC 29412

  • 9 Gadsden Street For Sale

    $1,895,000

    9 Gadsden Street, Charleston, SC 29401

    • 5 Beds
    • 3 Baths
    • 2,456 Sq.Ft.
  • 9 Gadsden Street For Sale

    $1,895,000

    9 Gadsden Street, Charleston, SC 29401

    • 5 Beds
    • 2,456 Sq.Ft.
View All

Follow Us On Instagram